Stworzenie rzutu mieszkania to kluczowy krok w planowaniu przestrzeni, niezależnie od tego, czy planujesz remont, wynajem, czy sprzedaż. Dzięki różnorodnym metodom i narzędziom, zarówno online, jak i tradycyjnym, każdy może łatwo przygotować rysunek swojego lokalu. W artykule przedstawimy proste i skuteczne sposoby na stworzenie rzutu mieszkania, które pomogą Ci zrozumieć, jak najlepiej zorganizować przestrzeń oraz jakie narzędzia wykorzystać w tym procesie.
W pierwszej części omówimy wybór odpowiednich narzędzi oraz techniki pomiarowe, które zapewnią dokładność w tworzeniu rzutu. Następnie przedstawimy metody manualne i online, które są przyjazne dla osób bez doświadczenia. Na koniec zwrócimy uwagę na sytuacje, w których warto skorzystać z profesjonalnych usług, aby uzyskać bardziej precyzyjne i formalne dokumenty.
Kluczowe wnioski:
- Rzut mieszkania można stworzyć zarówno ręcznie, jak i za pomocą darmowych programów online.
- Dokładne pomiary są kluczowe dla uzyskania realistycznego i funkcjonalnego rzutu.
- Warto korzystać z intuicyjnych narzędzi, takich jak Archiplaner czy Canva, które ułatwiają projektowanie.
- Rysowanie ręczne wymaga zachowania proporcji i dokładności, co można osiągnąć przy pomocy papieru w kratkę.
- W niektórych przypadkach, takich jak zmiany w użytkowaniu nieruchomości, konieczne jest zlecenie inwentaryzacji budowlanej przez specjalistów.
Jak stworzyć rzut mieszkania krok po kroku dla każdego
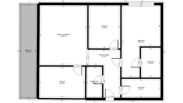
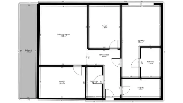
Stworzenie rzutu mieszkania to kluczowy krok w planowaniu przestrzeni, który pozwala na lepsze zrozumienie układu pomieszczeń. Dokładne zaplanowanie każdego etapu jest niezbędne, aby osiągnąć zamierzony efekt i uniknąć późniejszych problemów. Rzut mieszkania jest przydatny nie tylko przy remoncie, ale także podczas zakupu lub wynajmu lokalu. Warto zatem poświęcić czas na odpowiednie przygotowanie i przemyślenie układu, zanim przystąpimy do jego realizacji.
Najpierw należy określić cel rzutu, co pomoże w wyborze odpowiednich metod i narzędzi. Ważne jest, aby zrozumieć, jakie elementy powinny się znaleźć na rzucie, takie jak ściany, drzwi oraz okna. Proces ten zazwyczaj zaczyna się od stworzenia wstępnego szkicu, który później można rozwijać. Pamiętajmy, że stworzenie dokładnego rzutu mieszkania to nie tylko kwestia estetyki, ale również funkcjonalności, co ma kluczowe znaczenie w codziennym użytkowaniu przestrzeni.
Wybór odpowiednich narzędzi do rysowania rzutu mieszkania
Wybór odpowiednich narzędzi jest kluczowy, aby stworzyć rzut mieszkania, który będzie nie tylko estetyczny, ale także funkcjonalny. Istnieje wiele opcji, zarówno darmowych, jak i płatnych, które mogą ułatwić ten proces. Programy online oferują intuicyjny interfejs, który pozwala na łatwe dodawanie elementów, takich jak ściany, drzwi, okna i meble. Dzięki nim, każdy, nawet bez doświadczenia w projektowaniu, może stworzyć profesjonalny rysunek.
- Archiplaner – intuicyjny program online, który pozwala na szybkie tworzenie rzutu mieszkania z możliwością generowania wizualizacji 3D.
- Remplanner – narzędzie, które oferuje szereg szablonów oraz możliwość łatwego dodawania mebli i innych elementów do projektu.
- KoziKaza (dawniej Kazaplan) – platforma umożliwiająca tworzenie rzutu mieszkania z funkcją współpracy online z innymi użytkownikami.
- Canva – chociaż głównie znana jako narzędzie do projektowania graficznego, oferuje również szablony do tworzenia prostych rzutów mieszkań.
- Sweet Home 3D – darmowy program, który pozwala na projektowanie wnętrz w 3D, co ułatwia wizualizację przestrzeni.
Jak dokładnie zmierzyć pomieszczenia przed rysowaniem
Dokładne pomiary pomieszczeń są kluczowe dla stworzenia precyzyjnego rzutu mieszkania. Nieprawidłowe wymiary mogą prowadzić do problemów z układem mebli, a także wpływać na funkcjonalność przestrzeni. Dlatego warto poświęcić czas na staranne zmierzenie każdego pomieszczenia, uwzględniając grubość ścian, położenie drzwi i okien. Zastosowanie odpowiednich technik pomiarowych pozwoli uniknąć typowych błędów, takich jak pomijanie elementów architektonicznych czy nieodpowiednie przeliczanie wymiarów.
- Miara taśmowa – klasyczne narzędzie, które pozwala na precyzyjne pomiary długości. Jest łatwa w użyciu i dostępna w różnych długościach.
- Laserowy miernik odległości – nowoczesne urządzenie, które umożliwia szybkie i dokładne pomiary z dużych odległości. Idealne do większych pomieszczeń.
- Poziomica – przydatna do sprawdzania, czy pomiary są wykonane w poziomie lub pionie, co jest ważne przy planowaniu układu mebli.
- Notatnik i ołówek – niezbędne do zapisywania wymiarów i rysowania wstępnych szkiców pomieszczeń, co ułatwi późniejsze rysowanie rzutu.
Rysowanie rzutu mieszkania ręcznie na papierze
Rysowanie rzutu mieszkania ręcznie to świetny sposób na wizualizację przestrzeni, zwłaszcza dla osób, które preferują tradycyjne metody. Proces ten zaczyna się od dokładnego zmierzenia pomieszczeń, a następnie przeniesienia tych wymiarów na papier. Ważne jest, aby zachować proporcje i uwzględnić elementy takie jak ściany, drzwi i okna. Warto również korzystać z papieru w kratkę, co ułatwia rysowanie prostych linii i zachowanie odpowiednich wymiarów.
- Używaj papieru w kratkę – pozwala to na łatwiejsze zachowanie proporcji i dokładności w rysunku.
- Rozpocznij od szkicu – najpierw naszkicuj ogólny układ pomieszczeń, a następnie dodawaj szczegóły.
- Zaznacz grubość ścian – pamiętaj, aby uwzględnić grubość ścian w swoim rysunku, co jest kluczowe dla dokładności.
- Oznacz położenie drzwi i okien – zaznaczenie tych elementów pomoże w lepszym zrozumieniu przestrzeni.
- Sprawdzaj wymiary – regularnie porównuj swoje rysunki z rzeczywistymi wymiarami pomieszczeń, aby uniknąć błędów.
Wykorzystanie darmowych programów online do projektowania
W dzisiejszych czasach dostępnych jest wiele darmowych programów online, które umożliwiają łatwe tworzenie rzutów mieszkań. Te narzędzia oferują intuicyjne interfejsy, które pozwalają na szybkie dodawanie ścian, drzwi i okien, a także umożliwiają generowanie wizualizacji 3D. Dzięki nim, nawet osoby bez doświadczenia w projektowaniu mogą stworzyć profesjonalnie wyglądający rysunek. Wybór odpowiedniego narzędzia może znacznie przyspieszyć proces tworzenia rzutu mieszkania.
| Narzędzie | Funkcje | Łatwość użycia | Cena |
|---|---|---|---|
| Archiplaner | Generowanie wizualizacji 3D, intuicyjny interfejs | Łatwe | Darmowe z opcjami płatnymi |
| Remplanner | Szablony, możliwość dodawania mebli | Średnie | Darmowe z opcjami płatnymi |
| Canva | Szablony graficzne, łatwe w użyciu | Bardzo łatwe | Darmowe z opcjami płatnymi |
| Sweet Home 3D | Projektowanie wnętrz w 3D, możliwość importu modeli | Średnie | Darmowe |

Kiedy warto skorzystać z profesjonalnych usług projektowych
Decyzja o skorzystaniu z profesjonalnych usług projektowych może być kluczowa w wielu sytuacjach. Zatrudnienie doświadczonego projektanta wnętrz przynosi wiele korzyści, takich jak dostęp do fachowej wiedzy oraz umiejętności, które mogą znacząco poprawić jakość finalnego projektu. Profesjonaliści potrafią dostosować projekt do indywidualnych potrzeb klienta, a także uwzględnić aspekty techniczne, które mogą być trudne do zrealizowania samodzielnie. Warto również pamiętać, że w przypadku bardziej skomplikowanych projektów, takich jak przebudowy czy zmiany w układzie pomieszczeń, pomoc specjalisty może zaoszczędzić czas i pieniądze.
Oprócz korzyści estetycznych, profesjonalne usługi projektowe często obejmują również przygotowanie niezbędnej dokumentacji. Wiele projektów wymaga spełnienia określonych norm prawnych i technicznych, co może być trudne do zrealizowania bez odpowiednich umiejętności. Dlatego zatrudnienie specjalisty, który zna się na przepisach budowlanych oraz normach, jest kluczowe, aby uniknąć potencjalnych problemów związanych z legalnością projektu.
Jakie są korzyści z zatrudnienia projektanta wnętrz
Zatrudnienie projektanta wnętrz przynosi szereg korzyści, które mogą znacząco wpłynąć na jakość i funkcjonalność przestrzeni. Przede wszystkim, projektanci dysponują ekspercką wiedzą oraz doświadczeniem, co pozwala im na tworzenie innowacyjnych rozwiązań, które są zarówno estetyczne, jak i praktyczne. Dodatkowo, profesjonalista potrafi zoptymalizować układ pomieszczeń, co zwiększa komfort użytkowania. Zatrudnienie projektanta oszczędza również czas, ponieważ nie musisz samodzielnie zajmować się wszystkimi aspektami projektu.
- Przygotowanie kompleksowego projektu, który uwzględnia wszystkie potrzeby klienta.
- Optymalizacja przestrzeni, co pozwala na lepsze wykorzystanie dostępnej powierzchni.
- Pomoc w doborze odpowiednich materiałów i kolorów, co wpływa na estetykę wnętrza.
- Znajomość przepisów budowlanych, co zapewnia legalność i bezpieczeństwo projektu.
Usługi inwentaryzacji budowlanej i ich znaczenie
Usługi inwentaryzacji budowlanej odgrywają kluczową rolę w procesie tworzenia rzutów mieszkań oraz w dokumentacji technicznej. Inwentaryzacja polega na dokładnym pomiarze i dokumentowaniu stanu istniejącego budynku lub lokalu, co jest niezbędne do przygotowania rzetelnych planów oraz projektów. Dzięki tym usługom można uzyskać precyzyjne dane dotyczące wymiarów, układu pomieszczeń oraz lokalizacji elementów konstrukcyjnych. Profesjonalna inwentaryzacja jest szczególnie istotna w przypadku zmian w użytkowaniu nieruchomości oraz w sytuacjach wymagających spełnienia norm prawnych.
- Sprzedaż nieruchomości – dokładna inwentaryzacja jest niezbędna do przygotowania rzetelnej dokumentacji dla potencjalnych nabywców.
- Przygotowanie świadectwa energetycznego – inwentaryzacja pozwala na określenie rzeczywistych parametrów budynku, co jest wymagane do uzyskania świadectwa.
- Zmiana sposobu użytkowania – w przypadku przekształcenia lokalu, inwentaryzacja dostarcza niezbędnych informacji do przeprowadzenia odpowiednich procedur prawnych.
- Przygotowanie projektów budowlanych – rzetelna inwentaryzacja stanowi podstawę do prawidłowego opracowania projektów budowlanych i remontowych.
Czytaj więcej: Czy współwłaściciel może sprzedać mieszkanie bez zgody innych?
Jak wykorzystać technologię 3D w tworzeniu rzutu mieszkania
W dzisiejszych czasach, technologia 3D staje się coraz bardziej dostępna i może znacząco wzbogacić proces tworzenia rzutu mieszkania. Dzięki oprogramowaniu, które oferuje wizualizacje w trzech wymiarach, użytkownicy mogą nie tylko zobaczyć, jak będą wyglądać poszczególne pomieszczenia, ale także lepiej zrozumieć, jak różne elementy współgrają ze sobą w przestrzeni. Wykorzystanie technologii 3D pozwala na bardziej realistyczne planowanie i dostosowywanie układu pomieszczeń, co może ułatwić podejmowanie decyzji dotyczących aranżacji wnętrz.
Co więcej, symulacje 3D mogą być używane do testowania różnych układów mebli i kolorów ścian, co oszczędza czas i zasoby, eliminując potrzebę fizycznych zmian w przestrzeni. W przyszłości, integracja technologii VR (wirtualnej rzeczywistości) z projektowaniem wnętrz może umożliwić klientom „spacer” po swoim przyszłym domu jeszcze przed rozpoczęciem prac budowlanych. Takie podejście nie tylko zwiększa satysfakcję klientów, ale także pozwala projektantom na lepsze dostosowanie projektów do ich potrzeb i oczekiwań.
